住宅設計與安裝示例解釋配電箱
住宅設計與安裝示例解釋配電箱詳細資料由專業的低壓開關柜、低壓配電柜、低壓配電箱報價廠家為您提供。
資料來源:魯班建筑工程聯盟
如有侵權,請聯系刪除
(1)如何設計住宅配電箱荷載大???
住宅用電負荷分析
隨著人們生活水平的提高和家庭用電負荷的增加,特別是大功率家用電器的使用,如何計算家庭用電負荷的問題日益突出。讓我們回顧一下這些年來的國家電力標準。
70年代末以前設計的住宅建筑均按建筑面積每平方米2瓦的標準設計有供電設施,主要用于照明。兩居室用戶用電量不超過110瓦,三居室用戶用電量不超過140瓦。
20世紀80年代,供電設施是按照每平方米建筑面積10瓦的標準設計的。兩居室用戶的耗電量不超過550瓦,三居室用戶的耗電量不超過700瓦。
20世紀90年代,供電設施是按照每平方米建筑面積25瓦的標準設計的。兩居室用戶的耗電量不超過1400瓦,三居室用戶的耗電量不超過1700瓦。
現行國家標準規定,兩居室的用電負荷為4000瓦,相應的電度表規格為10(40)安培,引入銅線的截面不應小于10mm?2.、空調電源、照明和插座、廚房和衛生間電源插座應分別設置獨立的電路。
從以上可以看出,住宅建筑根據不同的建設年限有不同的供電能力。根據數據引入的經驗值,我國住宅電氣設計居民的單位面積計算負荷長期約為90W/m2。按照這個標準,100平方米的房間型已經達到9KW的電力負荷。
家用電器分析
讓我們看看家用電器。家用電器根據其功率一般可分為三個等級:
首先類是低功率電器,如電視、冰箱、洗衣機、電風扇、排氣扇、抽油煙機、組合音響、照明設備等。這種電器的負載約為300至700瓦。
第二類中等功率電器,如電吹風、微波爐、電飯鍋、電熨斗、電烤箱、電熱毯、吸塵器、電加熱器等。這種電器的總負載約為700至1200瓦..
三級是大功率電器,如空調、電熱水器、燒烤微波爐、電磁爐、空氣加熱器、浴霸等。負載約為1500至2500瓦..
當計算家庭用電負荷時,你可以把幾個同時使用較頻繁的電器的較大功率加起來,看看有多少負荷。根據電器的不同用途,應合理考慮電器的分布(例如,廚房開關應較大,這將在后面詳細說明)。然后,根據不同的需要,對配電箱的設計進行相應的調整和布局,使配電箱的使用更加合理和安全,較終達到安全用電的目的。
綜上所述,我們可以根據不同的房間類型設計相應的配電箱型,這樣不僅可以節約成本,還可以達到安全用電的目的。
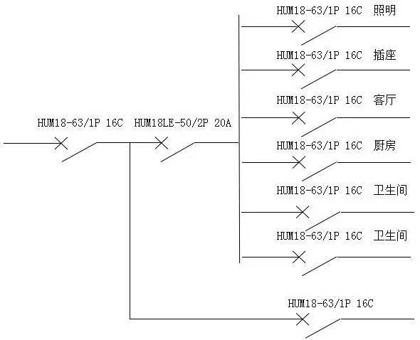
以三室兩廳為例,以用戶功耗為10KW為設計要求,進行了配電箱的設計。
主進線開關的設計
根據用戶總用電負荷為10KW的要求,我們可以計算出電流I=P/U,計算出的電流為45A。我們考慮了功率因數,45*0.8=36.36。為了節約能源,我們還要考慮另一個因素,那就是同時使用家用電器。我們根據0.8: 36.36*0.8=29.09進行計算。因此,主進線開關的設定值可以設定為32A。根據計算的電流值和開關設定值,我們選擇BV6方線作為家庭內部線路,選擇10(40)A作為電度表。
漏電開關的選擇
終端保護應為高靈敏度、快速動作的保護器,額定剩余動作電流iδ n ≤ 30ma,額定動作時間TN < 0.1s,可選擇20A。
支路的設計
我們設計的房間類型屬于大房間類型。讓我們分析一下結構:臥室、客廳、衛生間(雙人間)、廚房。我們將電氣管道分為以下幾類:照明、插座、空調、廚房和衛生間(雙重),因此有六條管道進入房間。
讓我們看看每個房間里可能的電氣設備。臥室:燈、電視、空調、電腦等??蛷d:燈具、電視、音響、飲水機、空調等。廚房:燈、抽油煙機、冰箱、電飯鍋、微波爐等。廁所:浴室加熱器、燈、排氣扇、洗衣機、電熱水器、吹風機等。(這些房間的電氣設備是根據目前人們的生活水平粗略分析的。)通過以上分析,我們可以看到,從用電量的角度來看,每個房間的用電設備大致是均勻分布的。也就是說,每個房間都有耗電量低或高的電器,每個房間的耗電量一般不會超過8KW。
因此,我們可以平均分配住宅分支交換機,每個電路只需要一個16A交換機。房間里有6條線路,我們增加了一條備用線路,所以總共有7條線路。雖然新的《住宅設計規范》規定“除空調電源插座外,其他電源插座電路應具備漏電保護功能”,但出于安全考慮,我們仍在空調插座上增加漏電開關。照明電路使用漏電保護嗎?這個話題和空調插座是否需要安裝有泄漏是業界有爭議的。據說國外住宅照明需要漏電。不安裝泄漏的基礎是照明設備的高度。衛生間的照明高度怎么樣?所以我認為照明開關也應該配備漏電保護裝置。根據以上設計方案,設計了以下線路圖。

(示例系統圖)
我們的設計不僅要保證用電安全,還要為居民提供更大的便利。有時安全和方便會相互制約。我們經常關注用電的安全。如前所述,增加了一個備用電路。漏電保護前我們設計了備用電路。習慣無泄漏照明的用戶可以自己調節。所有其他電器都在漏電保護范圍內,以確保更安全地用電。
(2)住宅配電箱造型設計
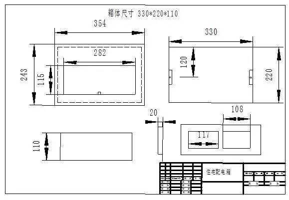
為什么盒子的設計放在后面?因為我們必須先根據用戶的需要設計圖紙,然后根據圖紙和客戶的要求選擇開關。只有在我們選擇了開關之后,我們才能根據開關的尺寸來設計盒子的尺寸,以確保節省原材料和成本。
結構設計
照明配電箱根據安裝方法,結構可分為兩種類型:封閉式懸掛式(開放式安裝)和嵌入式(暗裝)。主體結構分為箱體外殼、面板、安裝支架、中性母線、接地母線等部件。面板設有用于操作主開關和分路開關的開孔。如果不需要安裝所有分流開關,可以用密封板部分封閉開口孔。進出線的開孔設置在箱體外殼的上表面和下表面。背面還有一個長圓形攻絲孔,可根據用戶需要攻絲后使用。
尺寸設計
選擇部件后,我們通過測量了解部件的總體尺寸。7 * 18毫米+36毫米'+72毫米= 234毫米。需要在組件之間留下一個跟蹤位置。開關分為兩部分。在軌跡位置留一個空間就足夠了,即大約20毫米。此外,開關的兩側需要留有安裝位置和操作空間,并且一側只有50毫米,因此盒子的寬度可以計算為:234+20+100=354毫米。我們將盒子的尺寸設置為354毫米
我們根據上述方法通過測量開關來計算箱子的高度。箱子的總高度可以設置為220毫米。
盒子的厚度不能太厚,因為它是隱藏的。只要組件可以放下,就有足夠的安全空間。我們把盒子的厚度定為100毫米。
盒子的尺寸是354(寬)*220(高)*110(厚)。
右邊的開口大小為108毫米,用作6路電路的操作窗口。
左側開口尺寸為117毫米,作為進線總開關、漏電保護器和備用電路的操作窗口。

箱式開關支架的設計
為了使開關更牢固地安裝在盒子里,我們制作了一個帶有標準尺寸導軌的支架。
部件安裝導軌

(成品圖示例)
(3)箱內主要電氣元件及其保護功能
隔離設備
用作室外電源進入住宅的主開關。家用或類似場所使用配電箱,屬于非熟練人員使用的電器組合,因此主開關應使用具有明顯隔離斷口或明顯隔離指示的隔離電器。當發生電氣故障時,只要隔離的電器斷開,用戶端就被切斷電源,此時即使是不熟練的人員也能安全地修理電氣設備。
微型斷路器
它可用作進線總開關或出線子開關,為配電線路提供過載和短路保護。它是建筑電氣終端配電裝置中使用較廣泛的終端保護裝置之一。雖然微型斷路器是一種終端電器。然而,它數量大,范圍廣。如果選擇了不合適的MCB,造成的損失也會很大。
漏電保護器
漏電保護器,通常稱為漏電開關,用于在電路或電絕緣損壞導致對地短路的情況下保護電器免受電擊和電氣火災。它們通常安裝在每個家庭2+的插座電路上。
在低壓配電系統中安裝漏電保護器是防止人身觸電事故的有效措施之一,也是防止漏電引發電氣火災和電氣設備損壞事故的技術措施。該系列選擇的漏電保護器應在電流值為30mA和0.1s內運行,以接觸帶電體保護。
絕緣導體
硬塑料護套線用于導線。該照明箱選用BV4方形電線。
④照明應用配電箱和安全可靠性問題
照明作為終端配電設備,使用量很大,其安全性和可靠性關系到千家萬戶,因此應慎重選擇。
選擇合格的正品
目前,在lighting 配電箱市場上有許多劣質產品和劣質品牌。箱線短路爆炸或其他電氣故障時有發生,直接影響生活和工作。
因此,應選擇符合國家標準的合格正品。重要的是,箱內的電氣元件應適用于受控電氣設備,并具有完善的保護功能。
配電箱其他相關要求
1.配電箱屬于外殼和塑料外殼兩種,有開啟和隱藏兩種,盒子必須完好無損。
2.箱內接線母線應分別設有零線、保護接地線和相線,并應完好絕緣。
3.配電箱門板應有檢查透明窗。
4.應安裝在干燥、通風、無障礙、使用方便的地方。
5.配電箱不應安裝得太高。安裝標高一般為1.8m,便于操作。
6.配電箱接線應規則、整齊,端子螺絲必須擰緊。
7.每個回路的進線必須足夠長,不允許有接頭。
8.安裝后,請注明每個電路的使用名稱。
更多選型規格報價定制等問題可及時聯系廠家,以上就是住宅設計與安裝示例解釋配電箱全部內容。
- 上一篇:配電箱系統圖學習,非常完整的技術!你學習過
- 下一篇:配電箱的安全要求介紹
