配電箱在"分配電箱,合計配電箱(柜)、開關箱"
配電箱在"分配電箱,合計配電箱(柜)、開關箱"詳細資料由專業的低壓開關柜、低壓配電柜、低壓配電箱報價廠家為您提供。
“配電箱”被廣泛使用。這是一個關于數據的巨大參數。它能合理分配電能,方便電路的開關操作。它具有高水平的安全保護,可以直觀地顯示電路的導通狀態。通常,它被用來形成低壓森林。開關設備、測量儀器、保護裝置和輔助設備需要組裝在封閉或半封閉的金屬柜或屏幕上。下面,配電箱中的“點數配電箱,總數配電箱(機柜)和開關盒”的標準化配置是共享的!

配電箱的基本要求:
1.配電箱(機柜)和開關箱的安裝和使用應符合JGJ42005標準和GB/T13869《施工現場臨時用電安全標準》。
2.配電箱(機柜)應按照“低壓成套開關設備和控制設備”第四部分中施工現場成套設備(ACS)的特殊要求和“施工現場臨時用電安全技術規范”JGJ42005的標準要求制造。
3、配電箱(柜)、開關箱應分為N線、PE線端子板,進出線必須通過端子板可靠連接,N線端子板必須與金屬電氣安裝板絕緣;PE線端子板必須與金屬電器安裝板電連接,進、出線中的N線必須通過N線端子板連接;聚乙烯線路必須通過聚乙烯線路端子板連接。聚乙烯線路和端子板必須電氣連接。電氣連接點的數量應該比盒子中的回路數量多2個。一個是PE線進入接線盒的連接點,另一個是重復接地的連接點。

4.配電箱安裝應滿足以下要求:
(1)配電箱,開關箱在建筑物下降半徑或塔吊臂旋轉半徑內必須做雙層防護棚,并采取隔離措施
(2)固定配電箱,開關箱中心點到地面的垂直距離為1.1.6m..移動盒與地面的垂直距離為0.1.6m..配電箱時,開關箱應安裝在牢固穩定的支架上。
5、配電室布局應符合下列要求:
(1)配電柜側維修通道寬度不小于1m,配電室天花板與地面的距離不小于3m;
(2)配電柜正面作業通道寬度,單行布置或雙排背靠背布置不小于1.5m,雙排面對面布置不小于2m;
(3)配電柜后面的維修通道寬度,單行布置或雙排面對面布置不小于0.8m,雙排背靠背布置不小于1.5m,如果某些地方有建筑結構突出部分,該通道寬度可減少0.2m..

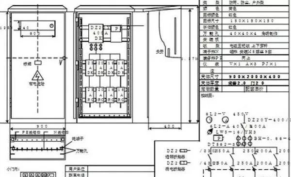
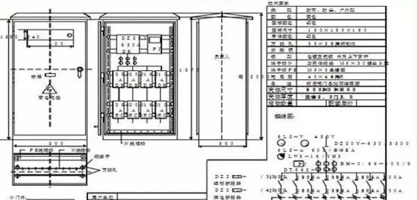
得分配電箱
分配電箱(電源電路和照明電路分配)配有200A-250A DZ20系列透明塑料外殼斷路器,具有隔離功能作為主開關(適用于總配電箱分配斷路器);電源分路和照明分路控制開關采用DZ20或KDM-1型透明塑殼斷路器。DZ20或KDM-1透明塑殼斷路器用作每個配電電路的控制開關。PE線連接螺栓和N線連接螺栓應根據實際需要配置。

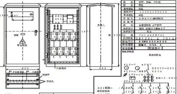
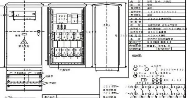
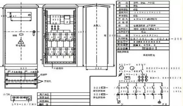
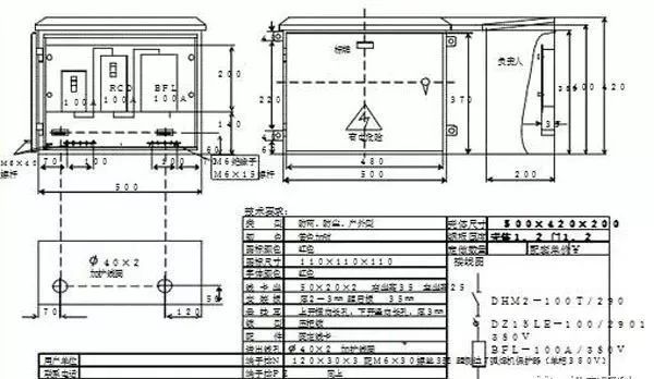
總計配電箱(機柜)
Total 配電箱 DZ20型帶隔離功能的透明塑料外殼斷路器安裝在400A-630A作為主開關,8路并聯安裝。采用具有隔離功能的DZ20系列160A-250A透明塑料外殼斷路器,并配有DZ20L(DZ15L)或LBM-1系列漏電保護裝置,具有欠壓、過載、短路、漏電和斷相保護功能,還配有兩套電流容器,即電能表、電壓表和電流表。漏電保護裝置的額定漏電動作電流與額定漏電動作時間的乘積不大于30mA。S,較好選擇額定漏電動作電流為100-200毫安,額定漏電動作時間大于0.1S,動作時間為延時動作類型。








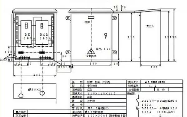
開關箱(根據一臺機器、一個制動器、一個泄漏、一個箱設置)
(1)電焊機開關箱內設置DZ20-100/2系列或KDM100/2(100A,380V)透明塑料外殼斷路器作為控制開關,DZ15LE-100/2(DZ20L-100/2)或LBM
100/2(100A)漏電斷路器和BFGD系列二次防觸電保護器;聚乙烯接線盒由3個連接螺栓組成。

(2)塔吊開關箱配備KDM1或DZ20(6100A,380V)系列透明塑料外殼斷路器作為控制開關,配置DZ15LE、DZ20L或LBM-1系列漏電斷路器。聚乙烯線路端子排由3個連接螺栓組成。

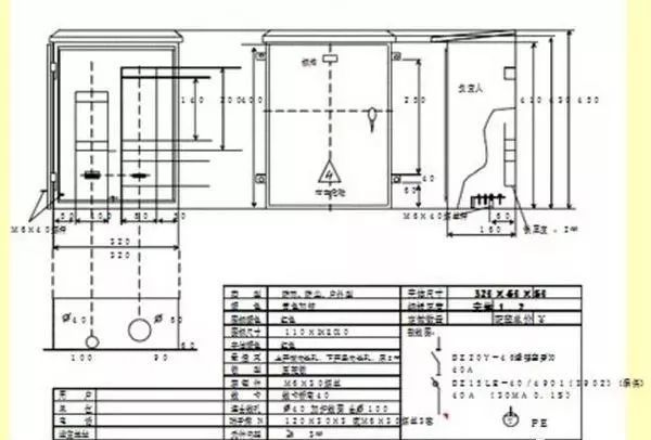
(3) KDM1或DZ20(20-40A,380V)透明塑殼斷路器設置在3)3.0千瓦以下電氣設備的開關箱內作為控制開關,配置DZ15LE、DZ20L或LBM-1(120A)系列漏電斷路器,PE線端子排為4個連接螺栓。

(4)4)5.5千瓦以上電氣設備的開關箱應根據被控設備的額定容量選擇控制開關和漏電斷路器。控制開關為DZ20或KDM1系列透明塑殼斷路器,漏電斷路器為DZ15L、DZ20L或LBM-1系列;聚乙烯電線連接有3個螺栓。


(5)照明開關箱配有KDM-T/2(20-40A)斷路器、DZ15L-20-40/290漏電斷路器和3個聚乙烯線螺栓。
注:開關箱內漏電斷路器必須選用額定漏電動作電流不大于30mA、額定漏電動作時間不大于0.1S、電流速斷和電磁電機保證產品。total 配電箱中型漏電斷路器應為配電保護產品。
來源:機房百科全書
請聯系并刪除任何侵權行為
-結束-
?
更多選型規格報價定制等問題可及時聯系廠家,以上就是配電箱在"分配電箱,合計配電箱(柜)、開關箱"全部內容。
