三級分配總和配電箱和施工要求
三級分配總和配電箱和施工要求詳細資料由專業的低壓開關柜、低壓配電柜、低壓配電箱報價廠家為您提供。
本配電箱(柜)適用于施工現場及室外臨時用電,應滿足“三級配電、二級漏電保護、一機一閘、一漏一箱”配電保護的使用要求。
一.基本要求
(1) 配電箱(機柜)應按照《低壓成套開關設備和控制設備》GB7251.4第四部分規定的施工現場成套設備(ACS)的特殊要求和《施工現場臨時用電安全技術規范》JGJ42005的標準要求制造。
(2) 配電箱(柜)、開關箱的安裝和使用應符合《施工現場臨時用電安全技術規范》JGJ42005標準和《用電安全導則》GB/T13869的標準化要求。
(3) 配電箱(柜)、開關箱應設置N線、PE線端子板,進出線必須通過端子板可靠連接。N線端子板必須與金屬電氣安裝板絕緣。聚乙烯線路端子板必須與金屬電器安裝板電連接。進線和出線中的N線必須通過N線端子板連接;聚乙烯線路必須通過聚乙烯線路端子板連接。聚乙烯線路和端子板之間的連接必須采用電氣連接。電氣連接點的數量應該比盒子中的回路數量多2個。一個是PE線進入接線盒的連接點,另一個是重復接地的連接點。
(4)電氣元件應是符合GB/4048.2001、GB6829和JGJ42005標準的產品,并符合建設部“十一五”期間推廣應用的技術要求。
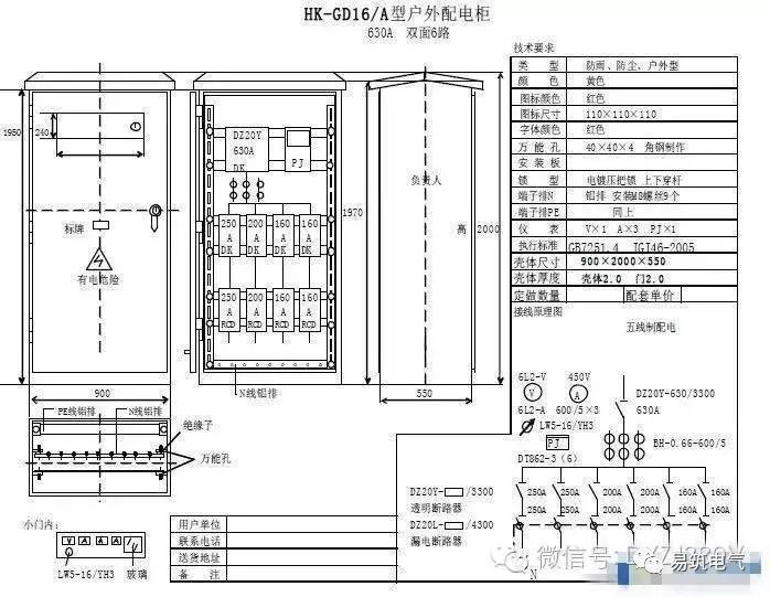
第二,總數配電箱(機柜)
主開關設置DZ20型透明塑殼斷路器,隔離功能為400A-630A,分路設置8路。采用具有隔離功能的DZ20系列160A-250A透明塑殼斷路器,配備DZ20L(DZ15L)或LBM-1系列漏電保護裝置,具有欠壓、過載、短路、漏電和斷相保護功能。同時,還配備了兩套電流容器,即電度表、電壓表和電流表。漏電保護裝置的額定漏電動作電流與額定漏電動作時間的乘積不大于30mA。S,較好選擇額定漏電動作電流為100-200毫安,額定漏電動作時間大于0.1S,動作時間為延時動作類型。
總計配電柜示意圖

總計配電柜端子板節點圖
總計配電柜機柜門電氣連接節點圖
四回路配電柜電氣系統圖

六個電路配電柜電氣系統圖
?
三、分配電箱(電源電路和照明電路分流分配)
DZ20系列透明塑殼斷路器,內置200A-250A隔離功能,作為主開關(適用于total 配電箱并聯斷路器);電源分路和照明分路控制開關采用DZ20或KDM-1型透明塑殼斷路器。DZ20或KDM-1透明塑殼斷路器用作每個配電電路的控制開關。PE線連接螺栓和N線連接螺栓根據實際需要配置。

點配電箱示意圖

點配電箱PE,N線端子板節點圖

點配電箱箱門電氣連接節點圖

點配電箱電氣系統圖
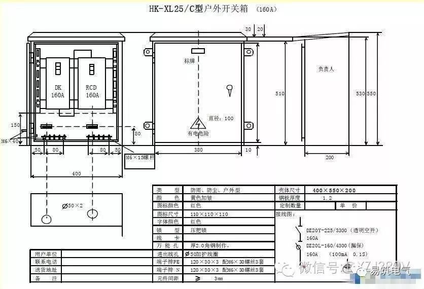
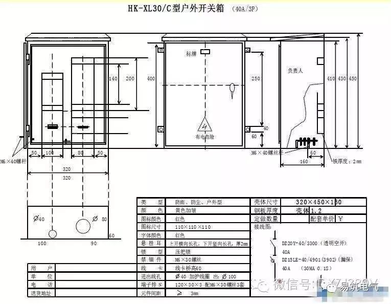
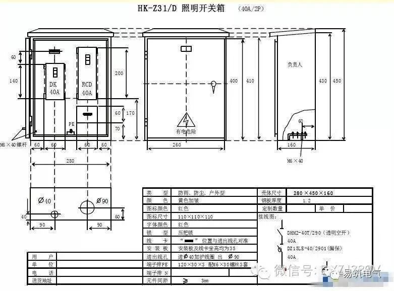
四、開關箱(按一機一閘一漏一箱設置)
(一)電焊機開關箱
DZ20-100/2系列或KDM 100/2 (100A,380V)透明塑料外殼斷路器作為控制開關,DZ15LE-100/2 (DZ20L-100/2)或LBM
100/2 (100A)漏電斷路器,BFGD系列二次觸電保護器;聚乙烯接線盒由3個連接螺栓組成。

電焊機開關箱示意圖

電焊機開關箱PE線端子板、箱門電氣連接節點圖

電焊機電氣系統圖
(2)塔式起重機開關箱

塔式起重機開關箱示意圖

塔式起重機開關箱端子板、箱門電氣連接節點圖

(3)3.0千瓦以下電力設備開關箱
控制開關采用內部KDM1或DZ20(20-40A,380V)透明塑殼斷路器,配置DZ15LE、DZ20L或LBM-1(120A)系列漏電斷路器,PE線端子排為4個連接螺栓。
(四)5.5千瓦以上電力設備開關箱
根據受控設備的額定容量選擇控制開關和漏電斷路器。控制開關為DZ20或KDM1系列透明塑殼斷路器,漏電斷路器為DZ15L、DZ20L或LBM-1系列;有3個聚乙烯電線連接螺栓。

設備開關箱示意圖

設備開關箱PE線端子板與箱門電氣連接節點圖

設備開關箱電氣系統圖
(5)照明開關箱
配有KDMT/2 (20-40A)斷路器、DZ15L-20-40/290漏電斷路器和3個聚乙烯線路螺栓。

照明開關箱示意圖

照明開關箱電氣系統圖
注:開關箱內漏電斷路器必須選用額定漏電動作電流不大于30mA、額定漏電動作時間不大于0.1S、電流速斷和電磁電機保證產品。total 配電箱中型漏電斷路器應為配電保護產品。
五、配電室布局應符合下列要求:
(1) 配電柜前操作通道寬度,單排或雙排背靠背布置不小于1.5m,雙排面對面布置不小于2m;
(2) 配電柜后面的維修通道寬度,單排布置或雙排面對面布置不小于0.8m,雙排背對背布置不小于1.5m,如果某些地方有建筑結構突出部分,此時通道寬度可減少0.2m:
(3) 配電柜側維修通道的寬度不得小于1m;
(4)配電室屋頂與地面的距離不得小于3m。
六、配電箱架設應符合下列要求:
(一)固定配電箱,開關箱盒中心與地面垂直距離為1.1.6 m..移動盒與地面的垂直距離為0.8—1.6m..配電箱時,開關箱應安裝在牢固穩定的支架上。
(2) 配電箱,開關箱在建筑物下降半徑或塔吊臂旋轉半徑內必須做雙層防護棚,并有隔離措施。
更多選型規格報價定制等問題可及時聯系廠家,以上就是三級分配總和配電箱和施工要求全部內容。
