專利動態一種新的智能集成開關柜
專利動態一種新的智能集成開關柜詳細資料由專業的低壓開關柜、低壓配電柜、低壓配電箱報價廠家為您提供。
近日,國家知識產權局公布專利“新型智能集成開關柜”,申請人是南通柊司電器制造有限公司和江蘇工程職業技術學院。
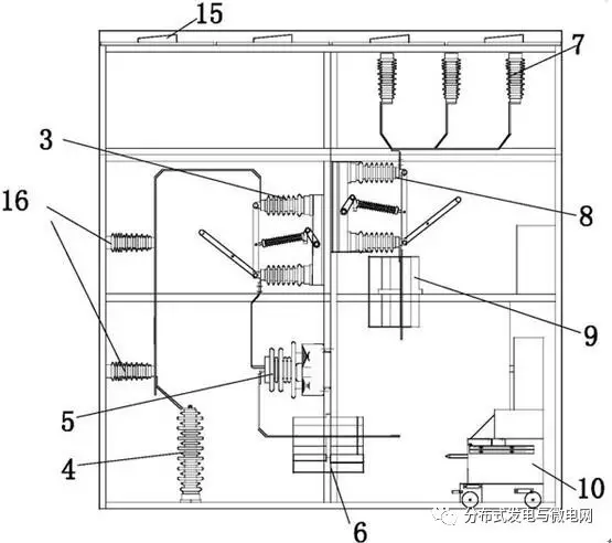
本發明公開了一種新型智能集成開關柜,包括左副柜體和右主柜體,副柜體的中間空間設有首先隔離開關;首先隔離開關的上端通過導線與避雷器連接,下端通過導線與電子電流傳感器連接;
輔助柜體和主柜體之間設有首先復合絕緣套;首先復合絕緣套穿過與副柜體和主柜體連接的垂直隔板;電子電流傳感器與首先導線連接;首先導體穿過首先復合絕緣套管,其自由端伸入主柜體的下部空間。
主柜體的上部空間設有復合絕緣子,下部空間設有智能斷路器;復合絕緣子通過第二隔離開關與第二復合絕緣套連接;首先隔離開關和第二隔離開關分別與母線套管連接。
本發明具有可靠性高、損耗小、免維護等特點。

更多選型規格報價定制等問題可及時聯系廠家,以上就是專利動態一種新的智能集成開關柜全部內容。
- 上一篇:2017年郭旺開關柜投標量及中標情況分析
- 下一篇:高壓開關柜時聯鎖裝置介紹
